Trilocale in vendita

Tivoli, Via Adolfo Scalpelli
€ 128.000
Prezzo aggiornato
3 locali 3 locali
90 Mq 90 Mq
1 bagno 1 bagno

Trilocale in vendita

Tivoli, Via Adolfo Scalpelli

Descrizione annuncio

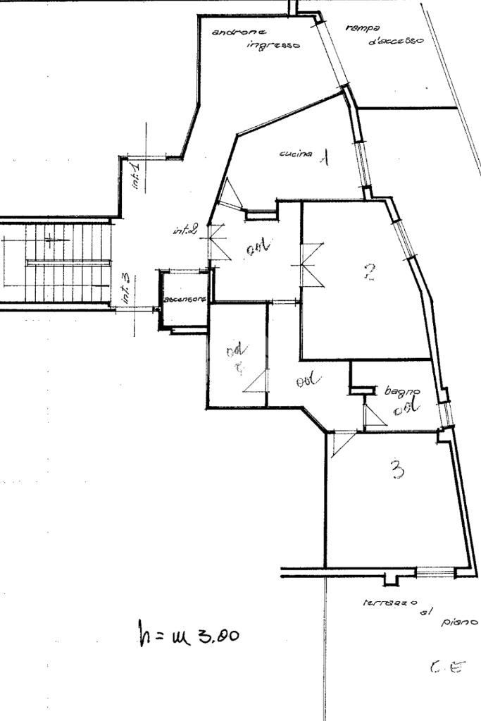
TIVOLI ALTA - VIA ADOLFO SCALPELLI
APPARTAMENTO CON TERRAZZO E CANTINA

Nella parte alta della nostra cittadina, più precisamente in via Adolfo Scalpelli, proponiamo in vendita una nuova soluzione!

Trattasi di appartamento situato al piano terra di un palazzo con rivestimento esterno a cortina.
Con una superficie di 90 mq ca commerciali (80 mq ca interni), l'immobile offre ampi spazi versatili che sono ideali per chi è alla ricerca di comfort e funzionalità.

La disposizione dei tre locali permette una gestione ottimale degli ambienti, con la possibilità di ricavare una cameretta aggiuntiva, perfetta per le esigenze di una famiglia in crescita.

Costruito nel 1970, l'appartamento conserva il fascino dell'epoca, pur offrendo tutte le comodità moderne. Un terrazzo esterno di 70 mq completa la proprietà, offrendo uno spazio all'aperto dove rilassarsi o organizzare momenti conviviali.

La posizione in cui è sito l'immobile rende questa proposta un'opportunità da non perdere per chi desidera vivere in un contesto tranquillo.

Mostra tutto

Nelle vicinanze

Trasporto pubblico Trasporto pubblico
Tivoli
Tivoli
1,0 Km
Trasporto pubblico
170 m
Tiburtina, Altezza Vle Arnaldi
Tiburtina, Altezza Vle Arnaldi
270 m
Ricariche auto elettriche Ricariche auto elettriche
Tivoli Viale Roma | EnelX
1,1 Km
Conad Superstore Tivoli | EnelX
1,8 Km
Villa Adriana Parcheggio Via Val Gardena | EnelX
2,1 Km
EnelX EVA+ c/o +VISTA FABBRICA OCCHIALI
2,7 Km
Scuole Scuole
Scuole
90 m
ist. Classico
240 m
Istituto Comprensivo Tivoli Centro 2
440 m
Scuola Elementare Statale Igino Giordani
470 m
SCUOLA SAN FRANCESCO DI SALES
530 m
Farmacia Farmacia
Caricari
640 m
Renzo Poggi
670 m
Farmacia
820 m
Farmacia Sulsenti
2,0 Km
Ospedali Ospedali
Pronto Soccorso Ospedale "San Giovanni Evangelista"
750 m
Ospedale San Giovanni Evangelista
780 m
Supermercati Supermercati
Carrefour Market
630 m
Todis
1,0 Km
Conad
1,8 Km
EuroSpin
2,6 Km
Negozi Negozi
Baby World
490 m
Marianna
600 m
United Colors of Benetton
830 m
Calzedonia
840 m
Vivomarket
870 m
Bar Bar
Bar
470 m
Kraken Bar
650 m
Ristoranti Ristoranti
Le Torri
510 m
Taverna della Rocca
530 m
Il Pollo d'Oro
650 m
La paninoteca ai portici di Nelly
670 m
L'Angolino di Mirko
690 m
Mostra tutto

Caratteristiche

Rif.:
61121214
Piano:
Terra di 4 con ascensore
Totale piani:
4
Terrazzi:
1
Camere da letto:
2
Arredamento:
Assente
Mostra tutto
Prezzo Prezzo
€ 128.000
Rata mutuo Rata mutuo
€ 603 / mese
Spese annue Spese annue
€ 360
Proponi il tuo prezzoProponi il tuo prezzo

Classe Energetica

G
G
G
G
G
G
G
G
G
EP globale non rinnovabile:
175.00 kW h/m² anno
EP globale rinnovabile:
175.00 kW h/m² anno
EP invernale del fabbricato:
EP estiva del fabbricato:
Anno di costruzione:
1970
Riscaldamento:
Autonomo
Tipo impianto:
A radiatori
Tipo alimentazione:
Metano

Prezzo ridotto di €1 (4%%)

Ti interessa visionare l'immobile?

Fissa un appuntamento  Fissa un appuntamento

Richiedi informazioni

Clicca su Leggi per aprire l'informativa
* Questi campi sono obbligatori

Calcola il tuo mutuo

Semplice e senza impegno
Anticipo

( % )
Mutuo

( % )

pochi semplici passi

inserisci i tuoi dati
Questionario completato
Grazie per aver richiesto un appuntamento senza impegno con un nostro Consulente del Credito e Assicurativo.

Hai inserito correttamente tutti i dati necessari e a breve riceverai una e-mail con un link da convalidare per inviare i tuoi dati.
Affiliato
Tivoli Uno Srl
Via Aldo Moro, 5 00019 Tivoli (RM)

Il nostro staff


  • Lorenzo De Angelis
    Affiliato

  • Roberto D'Eramo
    Responsabile

  • Maria Franca Farina
    Coordinatrice
Via Aldo Moro, 5 00019 Tivoli (RM)
Zona: Tivoli
Mostra su mappa
Orari: Lun-Ven : 9.00-13.00 15.30-19.30 Sab: 9.00-13.00 15.30-18:00
Affiliato
Tivoli Uno Srl
Via Aldo Moro, 5 00019 Tivoli (RM)

2026 Tecnocasa Franchising S.p.A. - P. IVA 08365160152 - Via Monte Bianco 60/A 20089 Rozzano (MI). Ogni agenzia ha un proprio titolare ed è autonoma. Privacy policy | Policy utilizzo | Cookie policy