Trilocale in vendita

Tivoli, Via Acquaregna
€ 192.000
3 locali 3 locali
95 Mq 95 Mq
1 bagno 1 bagno

Trilocale in vendita

Tivoli, Via Acquaregna

Descrizione annuncio

Tivoli - Via Acquaregna - Trilocale in eccellente stato con ascensore.

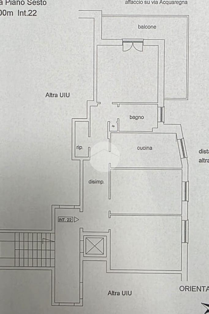
Abbiamo il piacere di proporre in vendita un ampio trilocale di 80 mq posto al sesto e ultimo piano di un edificio con ascensore. L'immobile, costruito nel 1960, è stato completamente ristrutturato offrendo un ambiente moderno e funzionale.

Il piano alto garantisce un eccellente luminosità e un affaccio panoramico.

La casa comprende una comodo soggiorno con uscita su balcone panoramico e abitabile, cucina vivibile, due ampie camere da letto, bagno con doccia doppia e un ripostiglio, oltre un comodo disimpegno che collega tutte le stanze.

Internamente l'immobile presente eccellenti rifiniture, infissi nuovi Oknoplast garantiscono un eccellente isolamento termico e acustico migliorando l'efficienza energetica dell'appartamento, termosifoni di design, predisposizione allarme volumetrico e telecamere, rivestimenti di bagno e cucina di ottima qualità e scelta.

La posizione strategica, a soli 80 metri dai principali servizi, rende questa soluzione ideale per chi cerca comodità e praticità. Un'opportunità unica per chi desidera vivere in un contesto centrale.

Chiamaci per fissare un appuntamento allo 0774405723 oppure scrivici su Whatsapp al 3475041280, e se hai bisogno di una consulenza per il mutuo gratuita e senza impegno, non esitare a contattarci!

Mostra tutto

Nelle vicinanze

Trasporto pubblico Trasporto pubblico
Tivoli
Tivoli
490 m
Cotral
Cotral
40 m
Trasporto pubblico
260 m
Ricariche auto elettriche Ricariche auto elettriche
Tivoli Viale Roma | EnelX
810 m
Conad Superstore Tivoli | EnelX
2,5 Km
Villa Adriana Parcheggio Via Val Gardena | EnelX
2,8 Km
Scuole Scuole
ITCG Enrico Fermi
220 m
Scuola Elementare Statale Igino Giordani
260 m
Istituto Comprensivo Tivoli Centro 2
290 m
SCUOLA SAN FRANCESCO DI SALES
300 m
Liceo Artistico Tivoli
400 m
Farmacia Farmacia
Caricari
120 m
Renzo Poggi
210 m
Farmacia
630 m
Farmacia Sulsenti
1,3 Km
Farmacia Empolitana
2,8 Km
Ospedali Ospedali
Pronto Soccorso Ospedale "San Giovanni Evangelista"
340 m
Ospedale San Giovanni Evangelista
350 m
Supermercati Supermercati
Carrefour Market
290 m
Todis
760 m
EuroSpin
1,9 Km
Conad
2,5 Km
Negozi Negozi
Baby World
430 m
United Colors of Benetton
650 m
Marianna
660 m
Calzedonia
660 m
Vivomarket
720 m
Bar Bar
Kraken Bar
190 m
Bar
550 m
Ristoranti Ristoranti
Ristoranti
170 m
Il Pollo d'Oro
200 m
Confu
450 m
La stazione
510 m
Mom
540 m
Mostra tutto

Caratteristiche

Rif.:
61153310
Piano:
6 di 6 con ascensore (ultimo Piano)
Balconi:
1
Camere da letto:
2
Arredamento:
Assente
Condizionamento:
Autonomo
Mostra tutto
Prezzo Prezzo
€ 192.000
Rata mutuo Rata mutuo
€ 911 / mese
Spese annue Spese annue
€ 480
Proponi il tuo prezzoProponi il tuo prezzo

Classe Energetica

D
D
D
D
D
D
D
D
D
EP globale non rinnovabile:
83.55 kW h/m² anno
EP globale rinnovabile:
0.00 kW h/m² anno
EP invernale del fabbricato:
EP estiva del fabbricato:
Anno di costruzione:
1960
Riscaldamento:
Autonomo
Tipo impianto:
A radiatori
Tipo alimentazione:
Metano

Ti interessa visionare l'immobile?

Fissa un appuntamento  Fissa un appuntamento

Richiedi informazioni

Clicca su Leggi per aprire l'informativa
* Questi campi sono obbligatori

Calcola il tuo mutuo

Semplice e senza impegno
Anticipo

( % )
Mutuo

( % )

pochi semplici passi

inserisci i tuoi dati
Questionario completato
Grazie per aver richiesto un appuntamento senza impegno con un nostro Consulente del Credito e Assicurativo.

Hai inserito correttamente tutti i dati necessari e a breve riceverai una e-mail con un link da convalidare per inviare i tuoi dati.
Affiliato
Tivoli Uno Srl
Via Aldo Moro, 5 00019 Tivoli (RM)

Il nostro staff


  • Lorenzo De Angelis
    Affiliato

  • Roberto D'Eramo
    Responsabile

  • Maria Franca Farina
    Coordinatrice
Via Aldo Moro, 5 00019 Tivoli (RM)
Zona: Tivoli
Mostra su mappa
Orari: Lun-Ven : 9.00-13.00 15.30-19.30 Sab: 9.00-13.00 15.30-18:00
Affiliato
Tivoli Uno Srl
Via Aldo Moro, 5 00019 Tivoli (RM)

2026 Tecnocasa Franchising S.p.A. - P. IVA 08365160152 - Via Monte Bianco 60/A 20089 Rozzano (MI). Ogni agenzia ha un proprio titolare ed è autonoma. Privacy policy | Policy utilizzo | Cookie policy