Trilocale in vendita

Tivoli, Vicolo Leoncini
€ 98.000
3 locali 3 locali
75 Mq 75 Mq
2 bagni 2 bagni

Trilocale in vendita

Tivoli, Vicolo Leoncini

Descrizione annuncio

CENTRO STORICO - APPARTAMENTO RISTRUTTURATO CON TERRAZZINO PRIVATO PANORAMICO

Nel cuore del centro storico di Tivoli, a pochi passi dai principali punti di interesse e immerso nel fascino autentico del borgo, più precisamente in Vicolo Leoncini, proponiamo in vendita un delizioso appartamento di circa 65 mq, recentemente ristrutturato con cura e attenzione ai dettagli con terrazzino privato panoramico al piano superiore.

L’immobile si distingue per la sua straordinaria luminosità, grazie alla favorevole esposizione e agli ambienti ben distribuiti che valorizzano ogni spazio.
Gli interni, rinnovati in chiave moderna, offrono un’atmosfera accogliente e funzionale, ideale sia come abitazione principale che come investimento.

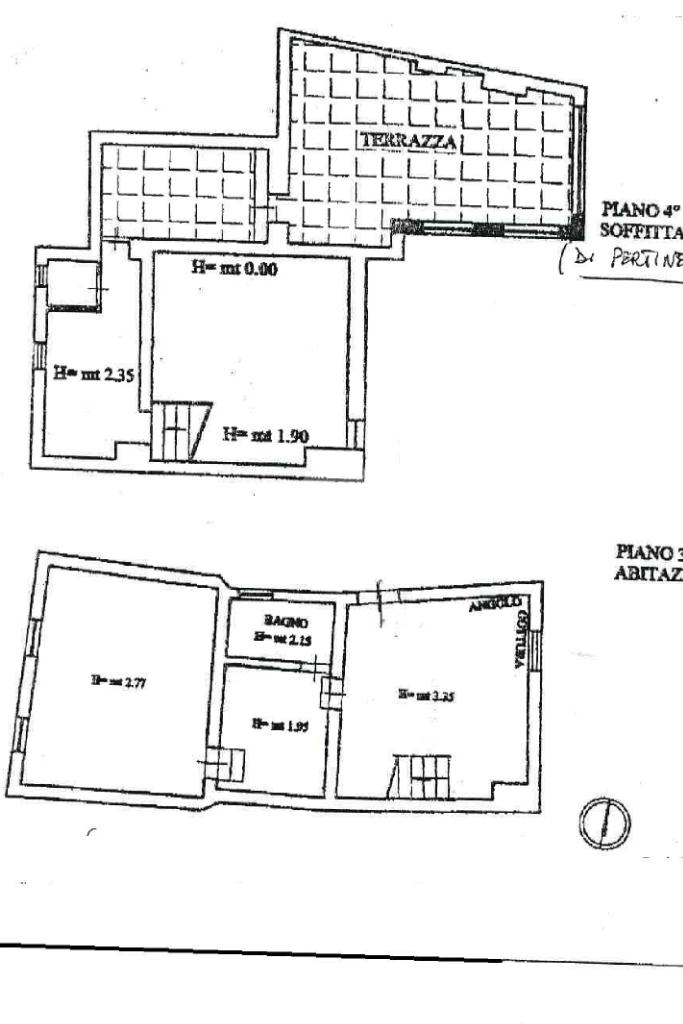
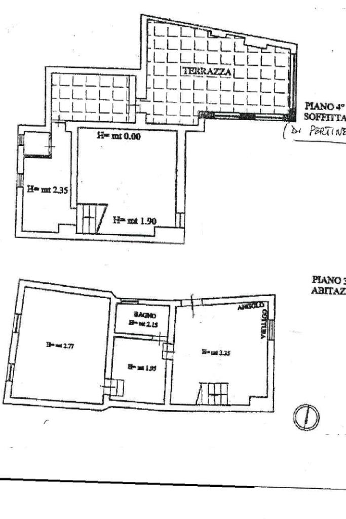
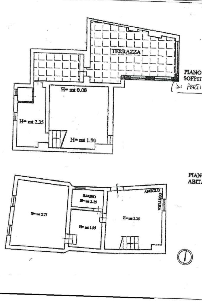
All'ingresso ci accoglie un comodo soggiorno con angolo cottura, proseguendo sulla destra ci dirigiamo in una seconda stanzetta di passaggio utilizzabile come piccolo salottino e bagno con doccia e finestra, continuando arriviamo in un'ampia camera da letto matrimoniale con vista aperta su Via San Valerio.
Attraverso una scala interna ci dirigiamo al piano superiore, qui è presente una seconda cameretta, un secondo bagno e locale tecnico con caldaia.

Da qui uno splendido terrazzino privato: uno spazio riservato e panoramico, perfetto per momenti di relax all’aperto, cene estive o semplicemente per godere della vista sui tetti e sul contesto storico circostante.

L'immobile è dotato di riscaldamento autonomo, gli impianti sono stati recentemente ristrutturati.
E' inserito in un piccolo contesto condominiale senza spese, l’appartamento garantisce tranquillità e gestione contenuta, un valore aggiunto raro nel centro storico.

Soluzione ideale per chi è alla ricerca di un investimento per se o per struttura ricettiva.
Perfetto per chi è alla ricerca di comfort moderno e uno sfogo esterno esclusivo nel cuore di Tivoli.

Mostra tutto

Nelle vicinanze

Trasporto pubblico Trasporto pubblico
Tivoli
Tivoli
780 m
Piazza Massimo
Piazza Massimo
340 m
Tivoli (Villa D'Este)
Tivoli (Villa D'Este)
610 m
Ricariche auto elettriche Ricariche auto elettriche
Tivoli Viale Roma | EnelX
380 m
Conad Superstore Tivoli | EnelX
2,2 Km
Villa Adriana Parcheggio Via Val Gardena | EnelX
2,5 Km
Scuole Scuole
Convitto Nazionale Amedeo di Savoia
480 m
IPSIACT Orazio Olivieri
630 m
Liceo delle Scienze Umane e Linguistico Isabella d'Este
650 m
Scuola Elementare Statale Igino Giordani
1,0 Km
ist. Classico
1,0 Km
Farmacia Farmacia
Farmacia
170 m
Renzo Poggi
880 m
Caricari
1,1 Km
Farmacia Sulsenti
2,1 Km
Ospedali Ospedali
Ospedale San Giovanni Evangelista
740 m
Pronto Soccorso Ospedale "San Giovanni Evangelista"
740 m
Supermercati Supermercati
Todis
380 m
Carrefour Market
800 m
Conad
2,2 Km
EuroSpin
2,8 Km
Mielfrutta
3,0 Km
Negozi Negozi
Suinoteca
190 m
Donna…
190 m
Tutto in pasta
210 m
Chicca
230 m
Asphalt Jungle
240 m
Bar Bar
Bar
200 m
Kraken Bar
900 m
Ristoranti Ristoranti
Pizzeria Napoletana
170 m
Hostaria Arché
180 m
Piadineria
190 m
Ristoranti
190 m
L'Ape 50
210 m
Mostra tutto

Caratteristiche

Rif.:
61208717
Piano:
3 di 3 (Piano medio)
Terrazzi:
1
Camere da letto:
2
Arredamento:
Assente
Condizionamento:
Assente
Mostra tutto
Prezzo Prezzo
€ 98.000
Rata mutuo Rata mutuo
€ 465 / mese
Spese annue Spese annue
€ 0
Proponi il tuo prezzoProponi il tuo prezzo

Classe Energetica

G
G
G
G
G
G
G
G
G
EP globale non rinnovabile:
175.00 kW h/m² anno
EP globale rinnovabile:
175.00 kW h/m² anno
EP invernale del fabbricato:
EP estiva del fabbricato:
Anno di costruzione:
1900
Riscaldamento:
Autonomo
Tipo impianto:
A radiatori
Tipo alimentazione:
Metano

Ti interessa visionare l'immobile?

Fissa un appuntamento  Fissa un appuntamento

Richiedi informazioni

Clicca su Leggi per aprire l'informativa
* Questi campi sono obbligatori

Calcola il tuo mutuo

Semplice e senza impegno
Anticipo

( % )
Mutuo

( % )

pochi semplici passi

inserisci i tuoi dati
Questionario completato
Grazie per aver richiesto un appuntamento senza impegno con un nostro Consulente del Credito e Assicurativo.

Hai inserito correttamente tutti i dati necessari e a breve riceverai una e-mail con un link da convalidare per inviare i tuoi dati.
Affiliato
Tivoli Uno Srl
Via Aldo Moro, 5 00019 Tivoli (RM)

Il nostro staff


  • Lorenzo De Angelis
    Affiliato

  • Roberto D'Eramo
    Responsabile

  • Maria Franca Farina
    Coordinatrice
Via Aldo Moro, 5 00019 Tivoli (RM)
Zona: Tivoli
Mostra su mappa
Orari: Lun-Ven : 9.00-13.00 15.30-19.30 Sab: 9.00-13.00 15.30-18:00
Affiliato
Tivoli Uno Srl
Via Aldo Moro, 5 00019 Tivoli (RM)

2026 Tecnocasa Franchising S.p.A. - P. IVA 08365160152 - Via Monte Bianco 60/A 20089 Rozzano (MI). Ogni agenzia ha un proprio titolare ed è autonoma. Privacy policy | Policy utilizzo | Cookie policy